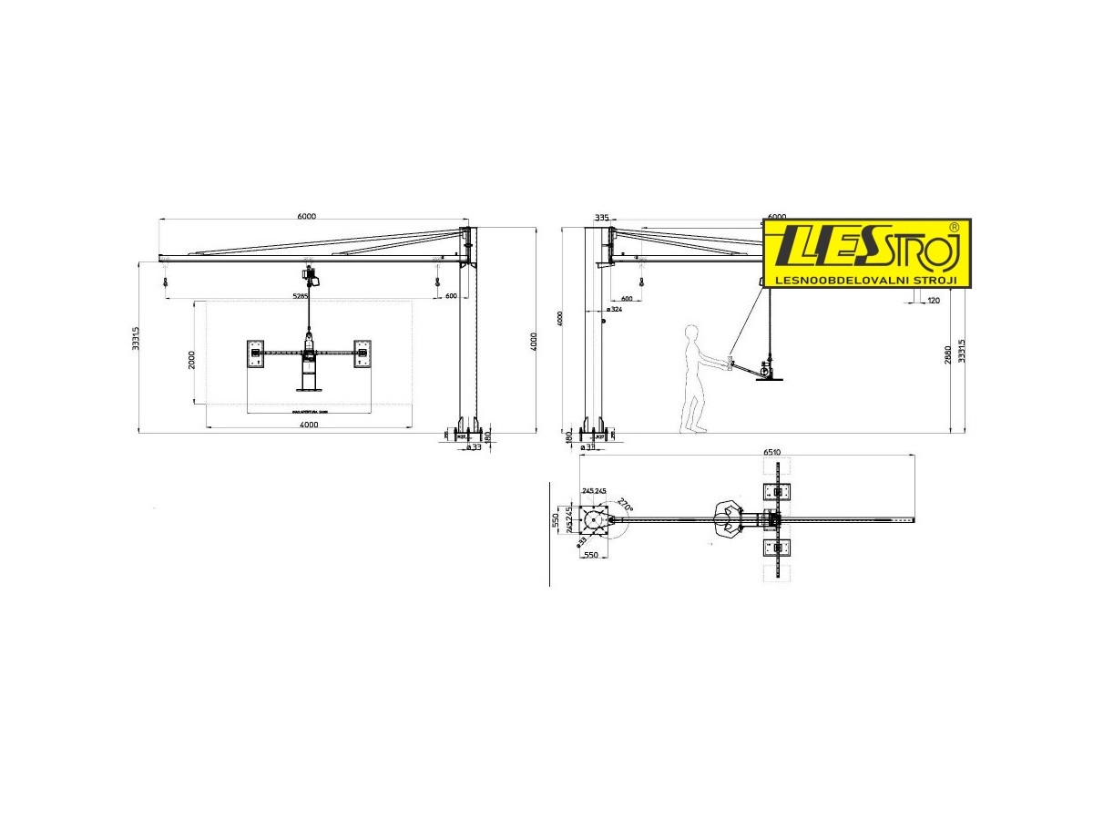
Manipulator plošč lifter
LIFTER je odličen pripomoček za prenašanje večjih elementov, ki je še posebej primeren za hitro in varno prenašanje vseh vrst laminiranih lesnih kompozitnih materialov, ki jih je mogoče prijeti s pomočjo vakuuma. Maksimalna teža obdelovanca, ki ga lahko nesemo je 200 kg, dolžina roke dvigala je 6 m.
Manipulator plošč LIFTER
Manipulator plošč LIFTER je pripomoček za enostavno prenašanje laminiranih lesnih ploščnih kompozitov, kot je iveral.
LIFTER je še posebej primeren za podjetja kjer plošče nakladajo na stroj ročno ali s pomočjo viličarjev, saj jim bo Lifter olajšal in pospešil proizvodnjo.
Z dvigalom lifter lahko dvigujete obdelovance do teže 200 kg na območju roke dvigala, ki je dolga 6 m.






